Great Book of Shop Drawings for Craftsman Furniture, Revised & Expanded Second Edition

$24.99

Shipping calculated at checkout

Paperback / softback

Quantity

Share

Description

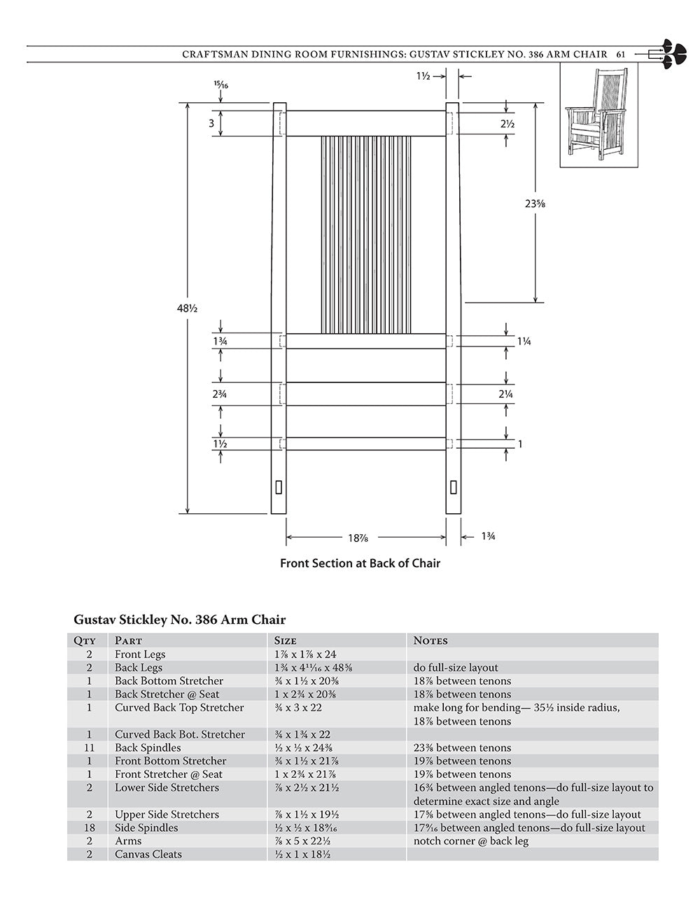
Great Book of Shop Drawings for Craftsman Furniture, Revised & Expanded Second Edition is a complete sourcebook of working shop drawings for 61 classic pieces of American furniture. Whether known as Craftsman, Arts & Crafts, or Mission, these sturdy, straightforward and immensely popular designs have graced American homes for more than 100 years. The author, a master cabinetmaker, measured original Craftsman antiques to create these detailed plans. This revised new paperback edition is compiled from three of his previous books: Shop Drawings for Craftsman Furniture; Shop Drawings for Craftsman Inlays & Hardware; and More Shop Drawings for Craftsman Furniture. Every type of furniture is represented here: from trestle tables, love seats, and nightstands to corner cabinets, rockers, tabourets and more. With perspective views, elevations, sections, details, and cutting lists, this book gives woodworkers the heart of the Craftsman aesthetic, along with all the information needed for workshop success. A bonus section on inlays and hardware offers original designs that add color, lyricism, and a graceful flourish to ever-popular Craftsman furniture.